Introducción
La actual iglesia parroquial de Santa Marina fue en su origen la iglesia del colegio de los Jesuitas, del que no queda otro vestigio, instituido en 1571 por el obispo de León, que eligió esta congregación porque “tienen fundados colegios con notable aprovechamiento”. El complejo abarcaba toda la manzana hasta el centro escolar Ponce de León, y acogía alumnos “externos”, sin ánimo vocacional, de tal modo que en 1687 el Ayuntamiento le concedió 6.000 ducados de los arbitrios del vino por los servicios docentes que reportaba.
La institución se disolvió en 1767, con motivo de la expulsión de los jesuitas por Real Pragmática. De ese momento procede el escudo de Carlos III sobre la puerta de entrada, en una auténtica exhibición de poderío.
Historia
La iglesia actual, que sustituyó una anterior más pequeña, comenzó a construirse en 1681 a cargo de Juan Guardado, maestro arquitecto de Medina del Campo, que ya fracasó en la construcción de los cimientos, aunque inicialmente no se le retiró el encargo para evitar litigios; fue apartado un año más tarde.
Hay constancia de que en 1684 se contratan las obras de yesería: esa fecha está inscrita en el frontispicio de la fachada, aunque las obras no debieron concluir hasta 1687.
Descripción y análisis
El edificio tiene una naturaleza equívoca. El imponente empaque de su interior contrasta con una factura material muy modesta, en concordancia con las penurias económicas en la España del siglo XVII.
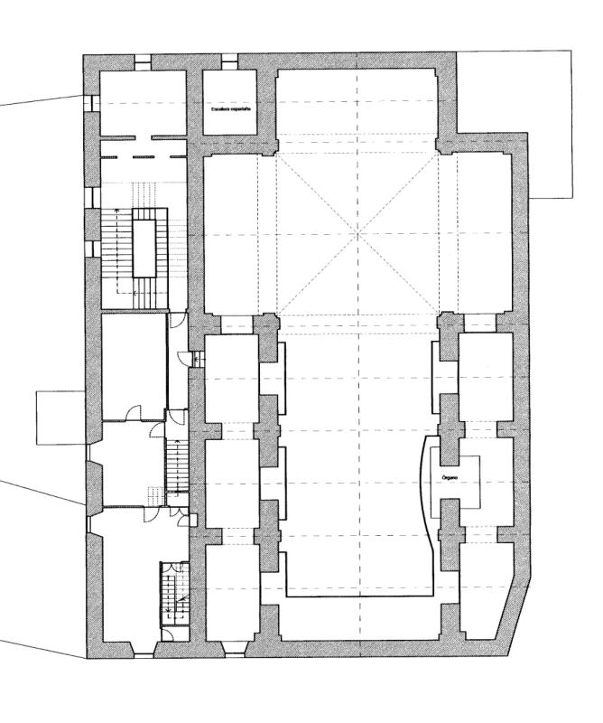
La planta de la iglesia es canónicamente jesuítica, con una gran nave central coronada por una bóveda de cañón, y capillas laterales mucho más pequeñas, una por cada arco fajón, comunicadas entre sí a través de unos estrechos vanos que horadan los estribos. El efecto general de grandiosidad está reforzado por la cúpula semiesférica que se eleva sobre el crucero.
Este modelo, que ofrece ejemplares próximos muy parecidos en San Nicolás de Villafranca del Bierzo y, sobre todo, en San Ambrosio en Valladolid, obedece a un esquema estructural destinado a soportar los empujes generados por cúpulas y bóvedas dentro de una planta con un perímetro perfectamente rectangular, sin contrafuertes. Se trata de una solución en las antípodas del gótico que facilita el encaje del templo en la trama urbana por la regularidad geométrica del contorno.
Desde el punto simbólico y funcional, una nave tan espaciosa facilita la contemplación del altar sin obstáculos, así como la audición de la prédica, de acuerdo con las instrucciones emanadas del Concilio de Trento, mientras que las capillas menores son propias de congregaciones con muchos sacerdotes.
Los balcones sobre las capillas laterales estaban destinados a facilitar la participación en las ceremonias religiosas desde el colegio. El coro es pequeño, de acuerdo con las normas litúrgicas de los jesuitas, que no otorgan mucha importancia a ese elemento.
Todo el programa decorativo es superpuesto, a base de yeserías que, además de la obvia función ornamental, tienen el propósito, no sé hasta qué punto eficaz, de mejorar el comportamiento acústico del recinto.
Al exterior, la iglesia tiene una posición extraña, en oblicuo, formando en la calle Serranos un raro ensanchamiento que no alcanza la categoría de plaza, aunque muy útil para albergar las aglomeraciones de la feligresía.
La fachada es muy adusta, no sólo por la escasez de medios en ese período de decadencia, sino que, probablemente, también se deba a que en origen estaba dentro del colegio, sin proyección hacia el exterior. Yendo hacia el Arco de la Cárcel aparece sorpresivamente, en un efecto muy escenográfico. Está construida con una combinación de fábrica de ladrillo y sillería reservada a los elementos ornamentales, rematada con un frontispicio triangular.
La exigua carga decorativa se concentra en el mestizo recercado de la puerta, renacentista en las pilastras laterales y el friso superior, y netamente barroco en el frontón interrumpido por un nicho. La generosa luz libre de este vano se salva con un admirable arco adintelado, prólogo de la magnificencia del interior.
Bibliografía
E. MORAIS VALLEJO: Arquitectura barroca religiosa en la provincia de León, Universidad de León, León, 2000



